高标准验厂认证辅导专家

专注RBA验厂辅导与技巧赋能

全国服务热线 020-86215771
当前位置: 首页>新闻资讯>行业资讯
返回
列表

安全出口指示标志与疏散出口指示标志,可能安装错了丨附依据

文章出处:行业资讯 网站编辑: 若水长行 阅读量: 发表时间:2021-07-12 20:16:34

《建筑设计防火规范》对于安全出口的定义


安全出口:供人员安全疏散用的楼梯间室外楼梯的出入口或直通室内外安全区域的出口。



安全出口是疏散出口的一种,主要针对某一独立的防火分区或楼层而言;疏散出口不一定是安全出口,疏散出口包括安全出口和房间疏散门,因此安全出口是安全度更高的疏散出口。
例如,一座3层的办公楼,在首层设置了一间大会议室,在其他楼层设置了办公室,则首层大会议室直通室外的疏散出口既是安全出口,也是疏散门,而各层办公室通向疏散走道的房间门就只是疏散门,而不是安全出口,但楼层上通向疏散楼梯处的入口则是该楼层的安全出口。再比如,一座3层的商店建筑,其二层营业厅设置了4道门,每道门均直通封闭楼梯间,则这4道门既是该营业厅的安全出口,也是其疏散门



哪些区域属于室内安全区域?哪些区域属于室外安全区域?
疏散楼梯间及其前室、避难间、避难层、避难走道、符合要求的室内步行街或有顶下沉广场、有顶庭院、相互间采用防火墙完全分隔的相邻防火区等,均可视为室内安全区域。
“室外安全区域”包括室外地面、符合疏散要求并具有直接到达地面设施的上人屋面、平台以及符合本规范6.6.4条要求的天桥连廊等。(6.6.4 连接两座建筑物的天桥、连廊,应采取防止火灾在两座建筑间蔓延的措施。当仅供通行的天桥、连廊采用不燃材料,且建筑物通向天桥、连廊的出口符合安全出口的要求时,该出口可作为安全出口。)
尽管规范将避难走道视为室内安全区,但其安全性能仍有别于地面,因此设计的安全出口要直接通向室外,尽量避免通过避难走道再疏散到室外地面。



接下来的内容,将围绕GB51309-2018《消防应急照明和疏散指示系统技术标准》(以下简称《技术标准》)和《建筑设计防火规范》GB50016-2014(2018年版)展开(以下简称《建规》)。


重点:

1、《建规》中“安全出口”的概念和《技术标准》中“安全出口”的概念不一样。

2、《技术标准》中直通室外的才能挂“安全出口”指示标志,其他的只能挂“疏散出口”指示标志。

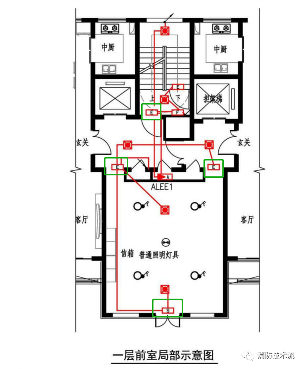
   在《技术标准》3.2.8条中对于出口标志灯的设置进行了具体的规定,一共有11款的条文,其中出口标志灯,包含了“安全出口”和“疏散出口”


   在《建规》中2.1.14条 将供人员安全疏散用的楼梯间和室外楼梯的出入口或直通室内外安全区域的出口定义为“安全出口”。其中“室内安全区域”包含符合《建规》相关要求的避难层、避难走道等,“室外安全区域”包括室外地面、符合疏散要求并具有直接到达地面设施的上人屋面、平台及满足《建规》相关要求的天桥、连廊等。


由于楼梯间、避难层和避难走道等属于室内区域,其安全性能有别于室外地面,为了能够对“室内安全区域”和“室外安全区域”的出口有明显的区分,《技术标准》对《建规》规定的安全出口进行了细分:将通向楼梯间、避难层、避难走道等“室内安全区域”的出口统一定义为“疏散出口”;将通向室外地面、室外楼梯、符合疏散要求并具有直接到达地面设施的上人屋面、平台及满足《建规》相关要求的天桥、连廊等室外安全区域的出口定义为“安全出口”。


观众厅、展览厅、多功能厅和建筑面积大于400平米的营业厅、餐厅、演播厅等人员密集场所的疏散门是人员安全疏散所必须途径的出口,《技术标准》也将该类场所的疏散门也界定为“疏散出口”。


安全出口和疏散出口上方设置的出口标志灯应有所区别,安全出口上方设置的标志灯的指示面板应有“安全出口”字样的文字标识,而疏散出口上方设置的标志灯的指示面板不应有“安全出口”字样的文字标识。

《技术标准》3.2.8 本条规定了出口标志灯的设置要求。安全出口是直通室外安全区域的出口,疏散出口是供人员安全疏散用的楼梯间的出入口或直通室内安全区域的出口,为了便于人员准确识别安全出口、疏散出口的位置,在进入安全出口、疏散出口的部位应设置出口标志灯;观众厅、展览厅、多功能厅和建筑面积大于400m²的营业厅、餐厅、演播厅等人员密集场所疏散门是通向室内外安全区域的必经出口,也属疏散出口的范畴;其上方也应设置出口标志灯;安全出口和疏散出口上方设置的出口标志灯应有所区别,安全出口上方设置的标志灯的指示面板应有“安全出口”字样的文字标识,而疏散出口上方设置的标志灯的指示面板不应有“安全出口”字样的文字标识


来源:网络


首页首页 服务中心服务中心 关于我们关于我们 一键呼我一键呼我 backtop回顶